RD BANKY

Späť
DRUH STAVBY
REKONŠTRUKCIA
ZASTAVANÁ PLOCHA
233,93 m²
ÚŽITKOVÁ PLOCHA
158,43 m²
VYKUROVANIE
PLYNOVÝ KOTOL + KRB
TYP STRECHY
PLOCHÁ
OBYTNÉ MIESTNOSTI
5

PRESTAVBA RODINNÉHO DOMU PRINÁŠA ZMENU DISPOZIČNÉHO AJ ARCHITEKTONICKÉHO RIEŠENIA. NOVÝ NÁVRH VYTVÁRA ODDELENIE DENNEJ A NOČNEJ ZÓNY S DÔRAZOM NA DOSTATOČNÉ PRESVETLENIE OBYTNÝCH PRIESTOROV. PÔVODNÁ VALBOVÁ STRECHA BOLA NAHRADENÁ PLOCHOU STRECHOU, ČO UMOŽNILO ZJEDNOTENIE HMOTY DOMU A VYTVORENIE ČISTEJ, HORIZONTÁLNEJ ARCHITEKTÚRY.

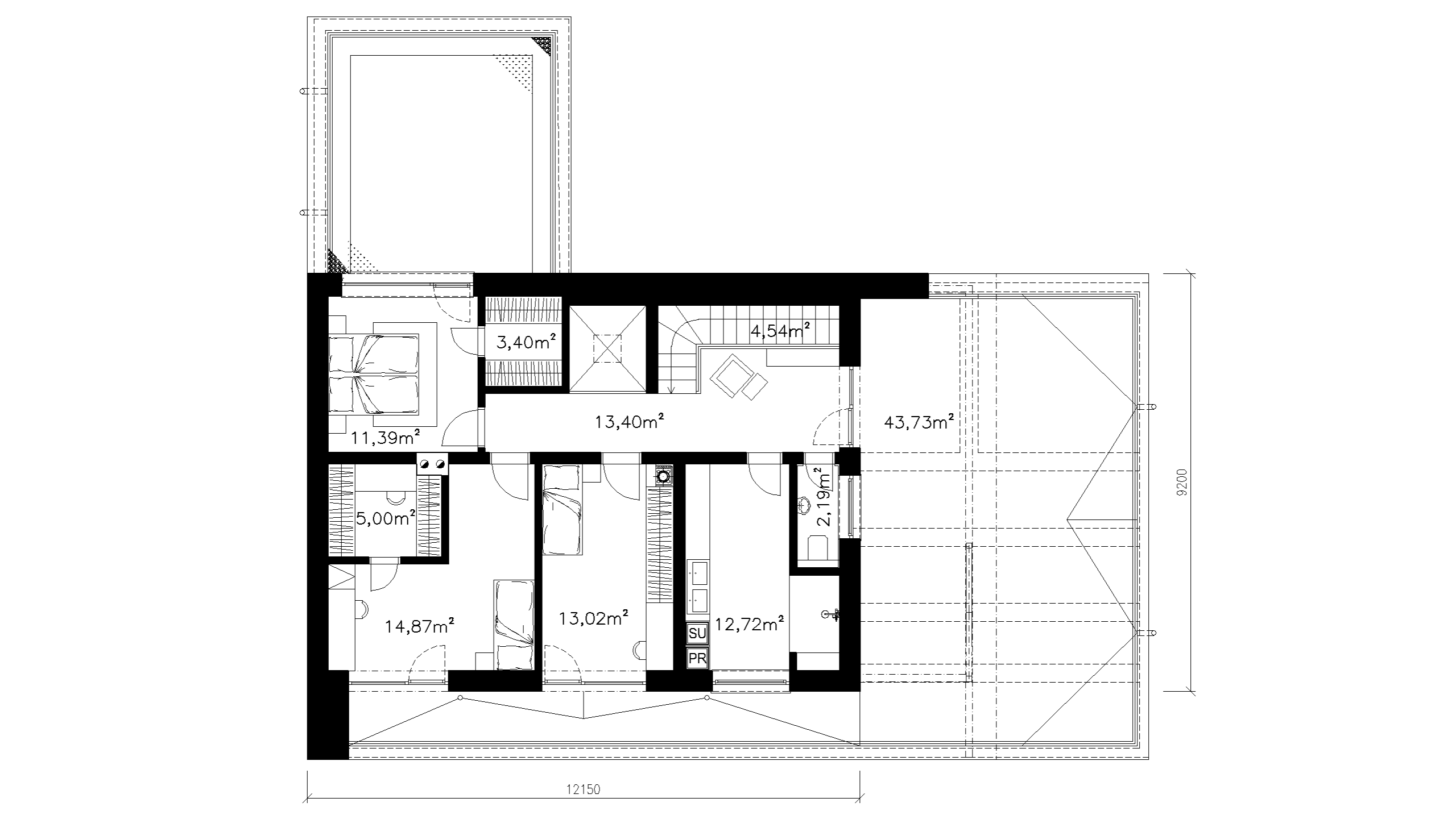
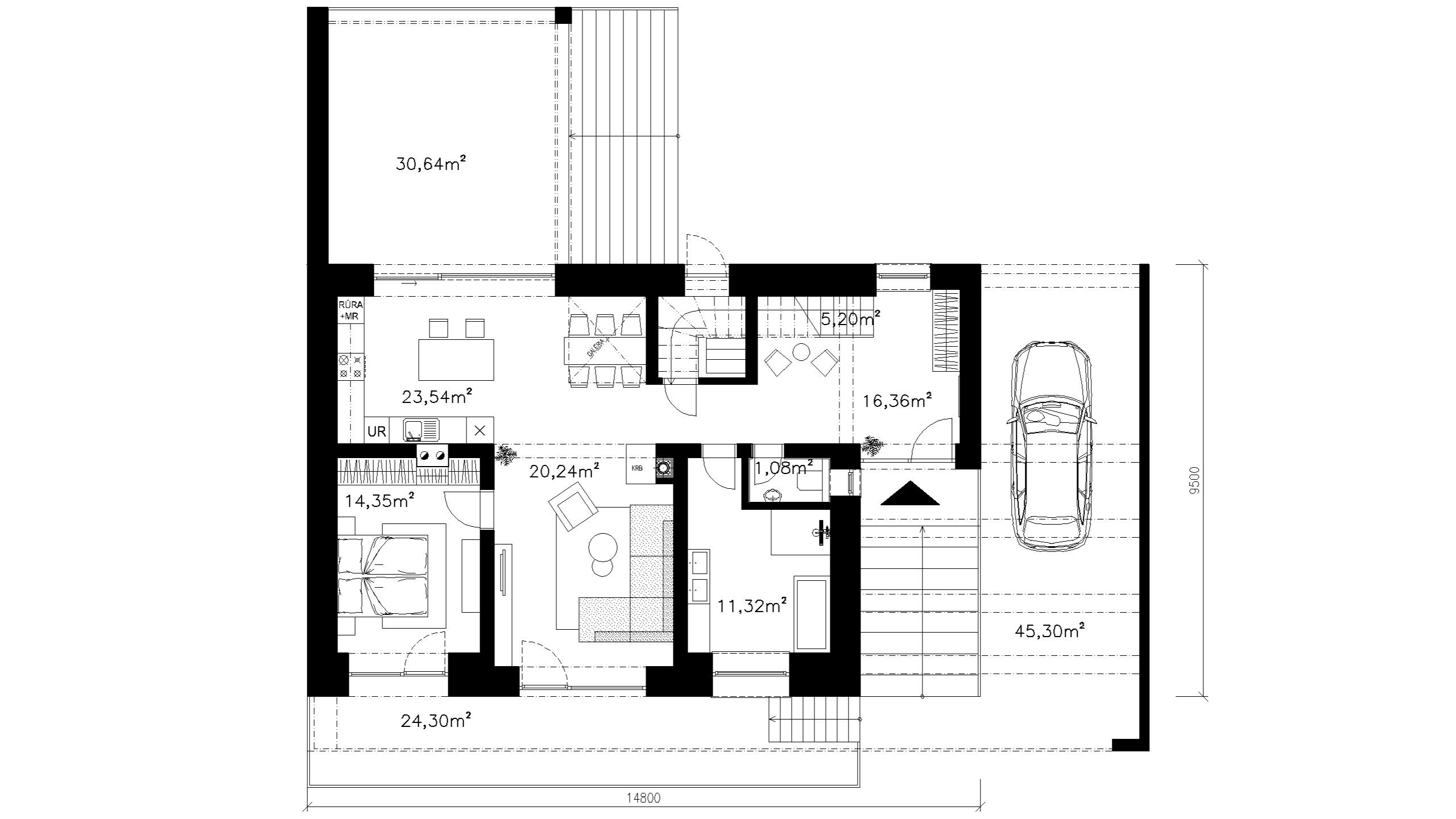
NÁVRH REŠPEKTUJE PÔVODNÉ KONŠTRUKČNÉ RIEŠENIE STAVBY, PRIČOM DOCHÁDZA K REORGANIZÁCII VNÚTORNÝCH PRIESTOROV A PRISPÔSOBENIU DISPOZÍCIE SÚČASNÝM PREVÁDZKOVÝM POŽIADAVKÁM RODINNÉHO BÝVANIA. NA 1. NADZEMNOM PODLAŽÍ JE SITUOVANÁ HOSŤOVSKÁ IZBA, OBÝVACIA IZBA, KUCHYŇA S JEDÁLŇOU A HYGIENICKÉ ZÁZEMIE TVORENÉ SAMOSTATNOU TOALETOU A KÚPEĽŇOU. NA 2. NADZEMNOM PODLAŽÍ SA NACHÁDZAJÚ OBYTNÉ IZBY, KÚPEĽŇA A KOMUNIKAČNÝ PRIESTOR. OBJEKT JE ZASTREŠENÝ PLOCHOU STRECHOU S ATIKOVÝM UKONČENÍM, RIEŠENOU AKO VIACVRSTVOVÝ STREŠNÝ PLÁŠŤ ZABEZPEČUJÚCI TEPELNO-IZOLAČNÉ VLASTNOSTI A SPOĽAHLIVÉ ODVODNENIE ZRÁŽKOVÝCH VÔD. PLOCHÉ STRECHY V ÚROVNI 1NP SÚ POCHÔDZNÉ A SLÚŽIA AKO EXTERIÉROVI PRIESTOR - TERASY.