RD LIEŠŤANY

Späť
DRUH STAVBY
REKONŠTRUKCIA
ZASTAVANÁ PLOCHA
130m²
ÚŽITKOVÁ PLOCHA
50m²
VÝŠKA STAVBY
8,8m
TYP STRECHY
SEDLOVÁ
OBYTNÉ MIESTNOSTI
5

NETRADIČNÉ ZADANIE ZREKONŠTRUOVAŤ STARŠÍ RODINNÝ DOM NA MODERNÚ FUNKČNÚ STAVBU NÁS NAOZAJ CHYTILO ZA SRDCE. SANÁCIA PODLÁH, NARUŠENÁ STATIKA STIEN A ZÁKLADOV A MNOŽSTVO NETYPICKÝCH DETAILOV BOLA VÝZVA ZVLÁDNUŤ NIEČO NETRADIČNÉ. VÝSLEDOK A SPOKOJNOSŤ INVESTORA HOVORIA SÁMÉ ZA SEBA.

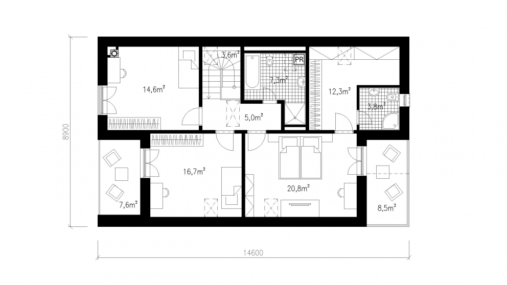
PROJEKT SA VYZNAČUJE JEDNODUCHÝM ARCHITEKTONICKÝM VZHĽADOM A INDIVIDUÁLNOU DISPOZÍCIOU NAVRHNUTOU PRE POTREBY INVESTORA. NA PRÍZEMÍ JE OBÝVACIA IZBA ELEGANTNE NEPRIAMO PREPOJENÁ S KUCHYŇOU, PRIČOM OKREM TECHNICKÉHO A HYGIENICKÉHO ZÁZEMIA SA TU NACHÁDZA AJ HOBBY MIESTNOSŤ. NA POSCHODÍ JE NAVRHNUTÁ VEĽKORYSÁ SPÁLŇA SO SAMOSTATNÝM ŠATNÍKOM, KÚPEĽŇOU A TERASOU. DVE SAMOSTATNÉ DETSKÉ IZBY MAJÚ NAVRHNUTÚ SPOLOČNÚ KÚPEĽŇU.