RD SEDMEROVEC

Späť
DRUH STAVBY
REKONŠTRUKCIA
ZASTAVANÁ PLOCHA
134,43 m²
ÚŽITKOVÁ PLOCHA
195,17
VYKUROVANIE
PLYNOVÝ KOTOL + KRB
TYP STRECHY
SEDLOVÁ
OBYTNÉ MIESTNOSTI
3

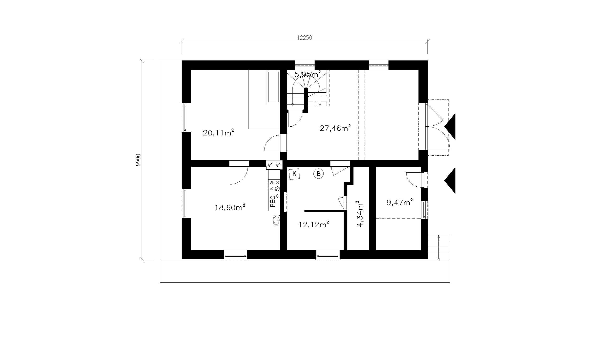
REKONŠTRUKCIA DOMU PRINÁŠA NOVÉ DISPOZIČNÉ USPORIADANIE. OBYTNÉ PRIESTORY SÚ ORIENTOVANÉ SMEROM DO ZÁHRADY A VYTVÁRAJÚ PRÍJEMNÉ PROSTREDIE PRE KAŽDODENNÝ RODINNÝ ŽIVOT. ARCHITEKTONICKÉ RIEŠENIE ZACHOVÁVA CHARAKTER PÔVODNÉHO DOMU A ZÁROVEŇ HO DOPĹŇA O SÚČASNÉ PRVKY KOMFORTNÉHO BÝVANIA.

DISPOZÍCIA 1. NADZEMNÉHO PODLAŽIA JE RIEŠENÁ AKO HLAVNÁ OBYTNÁ ÚROVEŇ DOMU, KTORÁ POZOSTÁVA Z OBÝVACEJ IZBY, KUCHYNE S JEDÁLŇOU A DVOCH SAMOSTATNÝCH OBYTNÝCH IZIEB. DISPOZÍCIA JE DOPLNENÁ O HYGIENICKÉ ZÁZEMIE TVORENÉ KÚPEĽŇOU S TOALETOU A KOMUNIKAČNÝ PRIESTOR. POD TOUTO ÚROVŇOU SA NACHÁDZA SUTERÉNNE PODLAŽIE, KTORÉ JE VYUŽÍVANÉ NAJMÄ NA TECHNICKÉ A DOPLNKOVÉ FUNKCIE DOMU A ZABEZPEČUJE PREVÁDZKOVÉ ZÁZEMIE OBJEKTU. VERTIKÁLNE PREPOJENIE JEDNOTLIVÝCH PODLAŽÍ JE ZABEZPEČENÉ VNÚTORNÝM SCHODISKOM SITUOVANÝM V CENTRÁLNEJ ČASTI DISPOZÍCIE. OBJEKT JE ZASTREŠENÝ PÔVODNOU SEDLOVOU STRECHOU S PLECHOVOU KRYTINOU.