V TOMTO PRÍPADE SME NAVRHLI MODERNÝ RODINNÝ DOM OSADENÝ DO KOMPLIKOVANÉHO TERÉNU S VYUŽITÍM NÁDHERNÝCH VÝHĽADOV NA HRAD DEVÍN A HAINBURG. POMERNE MALÁ PARCELA SPOLU S MIESTNYMI REGULATÍVAMI ÚZEMNÉHO PLÁNU ZNAČNE FORMOVALI VEĽKOSŤ DOMU.
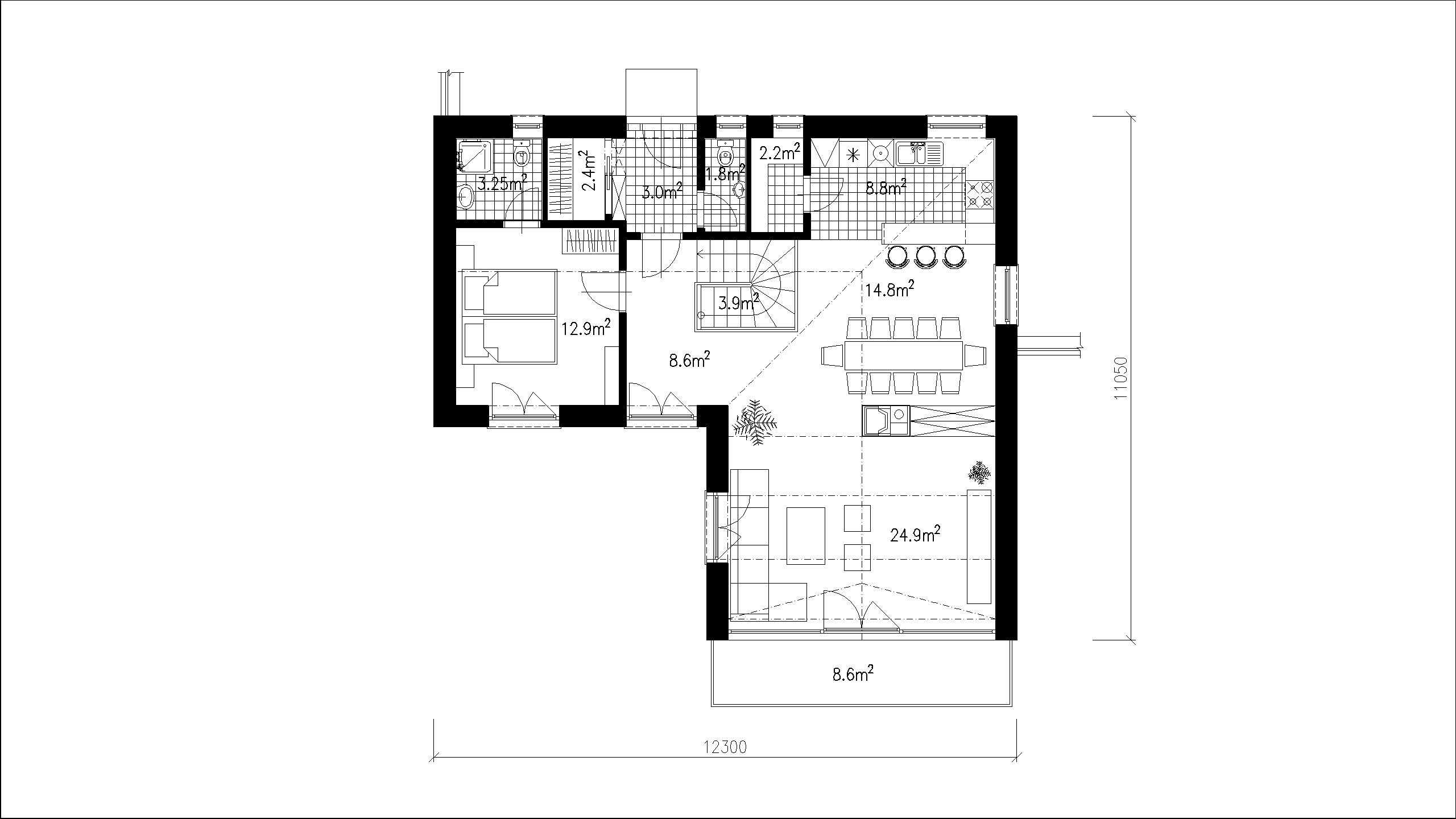
VZHĽADOM NA POŽIADAVKY RODINNÉHO BÝVANIA A NETYPICKÚ ORIENTÁCIU VJAZDU NA TERÉN JE NÁVRH ŠPECIFICKÝ. ZA VJAZDOM NA PARCELU SÚ NAVRHNUTÉ TRI PARKOVACIA MIESTA S MOŽNOSŤOU OTÁČANIA VOZIDIEL NA POZEMKU. NA PRÍZEMÍ JE NAVRHNUTÁ HOSŤOVSKÁ IZBA, KUCHYŇA A OBÝVACIA IZBA S PRIZNANÝMI DREVENÝMI VÄZNÍKMI. PODZEMNÉ PODLAŽIE JE PRIAMO PRÍSTUPNÉ ZO ZÁHRADY. JE TU SITUOVANÁ SÚKROMNÁ ČASŤ SO SPÁLŇOU, KÚPEĽŇOU A DETSKÝMI IZBAMI A TECHNICKÁ MIESTNOSŤ.
S výsledkom našej spolupráce s projekčnou kanceláriou sme veľmi spokojní - našim predstavám o bývaní dali efektnú a praktickú reálnu podobu, pričom je využitý plný potenciál neľahkého terénu.
