RD DIVIAKY NAD NITRICOU

Späť
DRUH STAVBY
NOVOSTAVBA
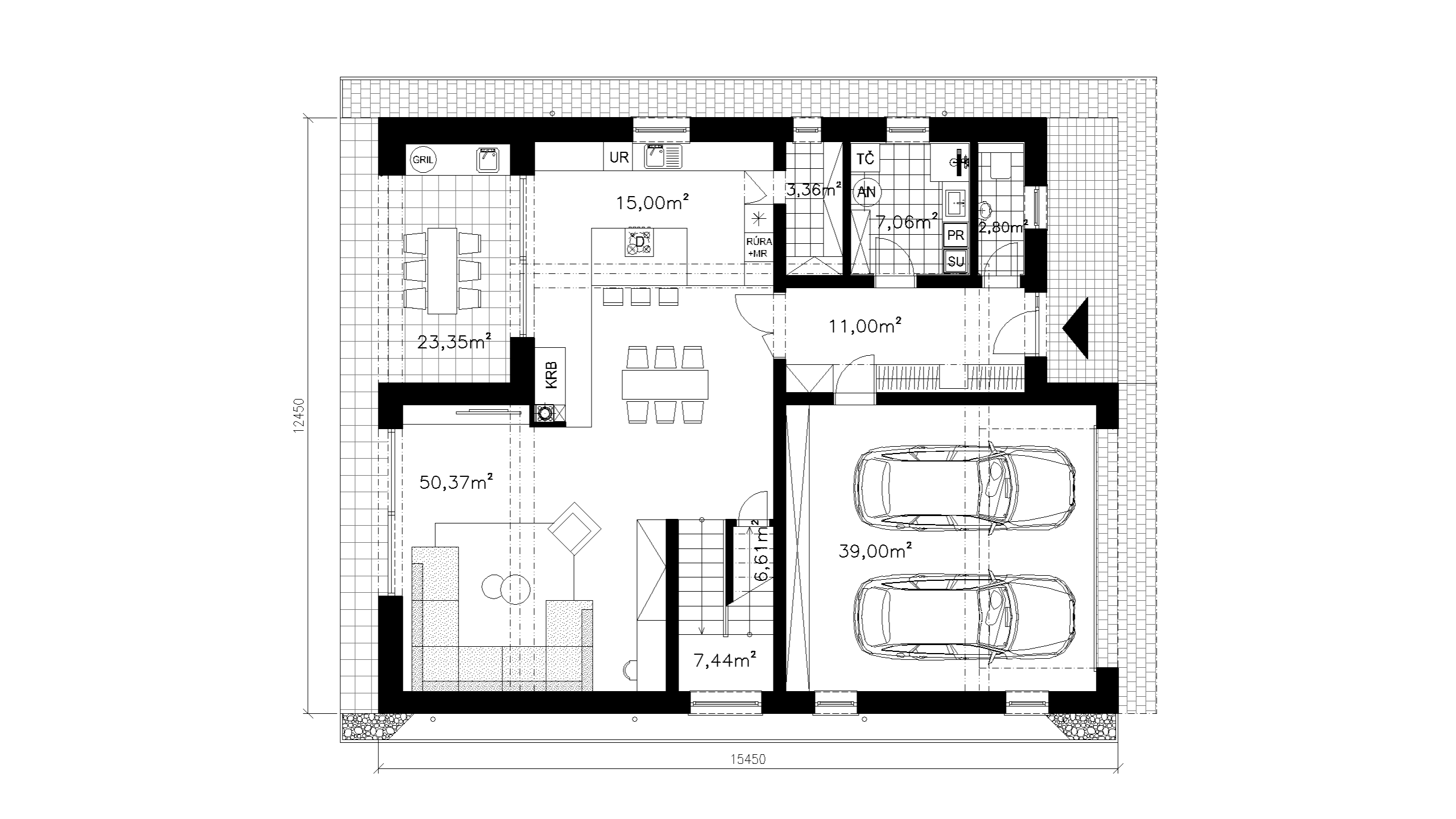
ZASTAVANÁ PLOCHA
202,31 m²
ÚŽITKOVÁ PLOCHA
213,39 m²
VYKUROVANIE
TEPELNÉ ČERPADLO + KRB
TYP STRECHY
PLOCHÁ
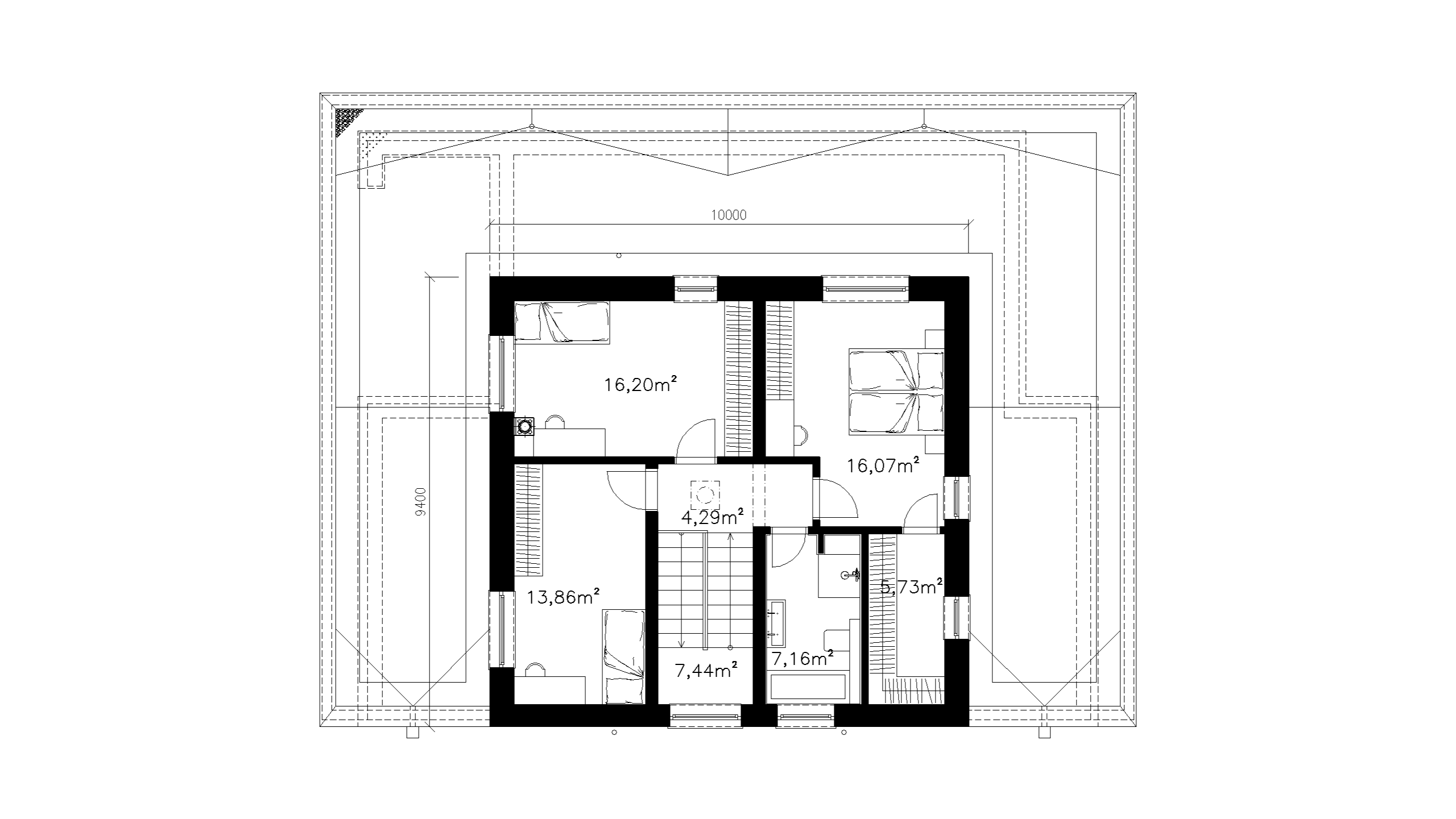
OBYTNÉ MIESTNOSTI
4

NOVOSTAVBA RODINNÉHO DOMU JE NAVRHNUTÁ AKO MODERNÝ, FUNKČNÝ OBJEKT S DÔRAZOM NA ČISTÉ LÍNIE A KVALITNÉ PRIESTOROVÉ RIEŠENIE. USTÚPENÉ PODLAŽIE DODÁVA HMOTE DOMU ĽAHKOSŤ A ZABEZPEČUJE DOSTATOK SÚKROMIA PRE NOČNÚ ZÓNU. DOMINANTOU DOMU SÚ DVA HS PORTÁLY, KTORÉ SPÁJAJÚ INTERIÉR S EXTERIÉROM A ZÁROVEŇ ZABEZPEČUJÚ DOSTATOK DENNÉHO OSVETLENIA.

RODINNÝ DOM JE NAVRHNUTÝ AKO DVOJPODLAŽNÁ STAVBA S PLOCHOU STRECHOU A KOMPAKTNÝM HMOTOVÝM RIEŠENÍM, KTORÉ PRIRODZENE ZAPADÁ DO OKOLITEJ ZÁSTAVBY. PRÍZEMIE TVORÍ OTVORENÁ DENNÁ ZÓNA S VEĽKORYSOU OBÝVACOU IZBOU PREPOJENOU S KUCHYŇOU A JEDÁLŇOU, DOPLNENÁ O TECHNICKÉ ZÁZEMIE A DVOJGARÁŽ INTEGROVANÚ DO HMOTY OBJEKTU. POSCHODIE JE VYHRADENÉ NOČNEJ ČASTI SO SAMOSTATNÝMI IZBAMI A HYGIENICKÝM ZÁZEMÍM, PRIČOM CENTRÁLNA KOMUNIKAČNÁ ČASŤ ZABEZPEČUJE PREHĽADNÉ A FUNKČNÉ USPORIADANIE. ARCHITEKTONICKÝ VÝRAZ DOMU JE ZALOŽENÝ NA PREPOJENÍ INTERIÉRU S EXTERIÉROM A DÔRAZE NA KOMFORTNÉ BÝVANIE PRE VIACČLENNÚ RODINU.