RD HORNÉ ŠUTOVCE

Späť
DRUH STAVBY
NOVOSTAVBA
ZASTAVANÁ PLOCHA
224,54 m²
ÚŽITKOVÁ PLOCHA
167,64 m²
VYKUROVANIE
SPLYŇOVACÍ KOTOL NA DREVO A PELETIEK
TYP STRECHY
VALBOVÁ
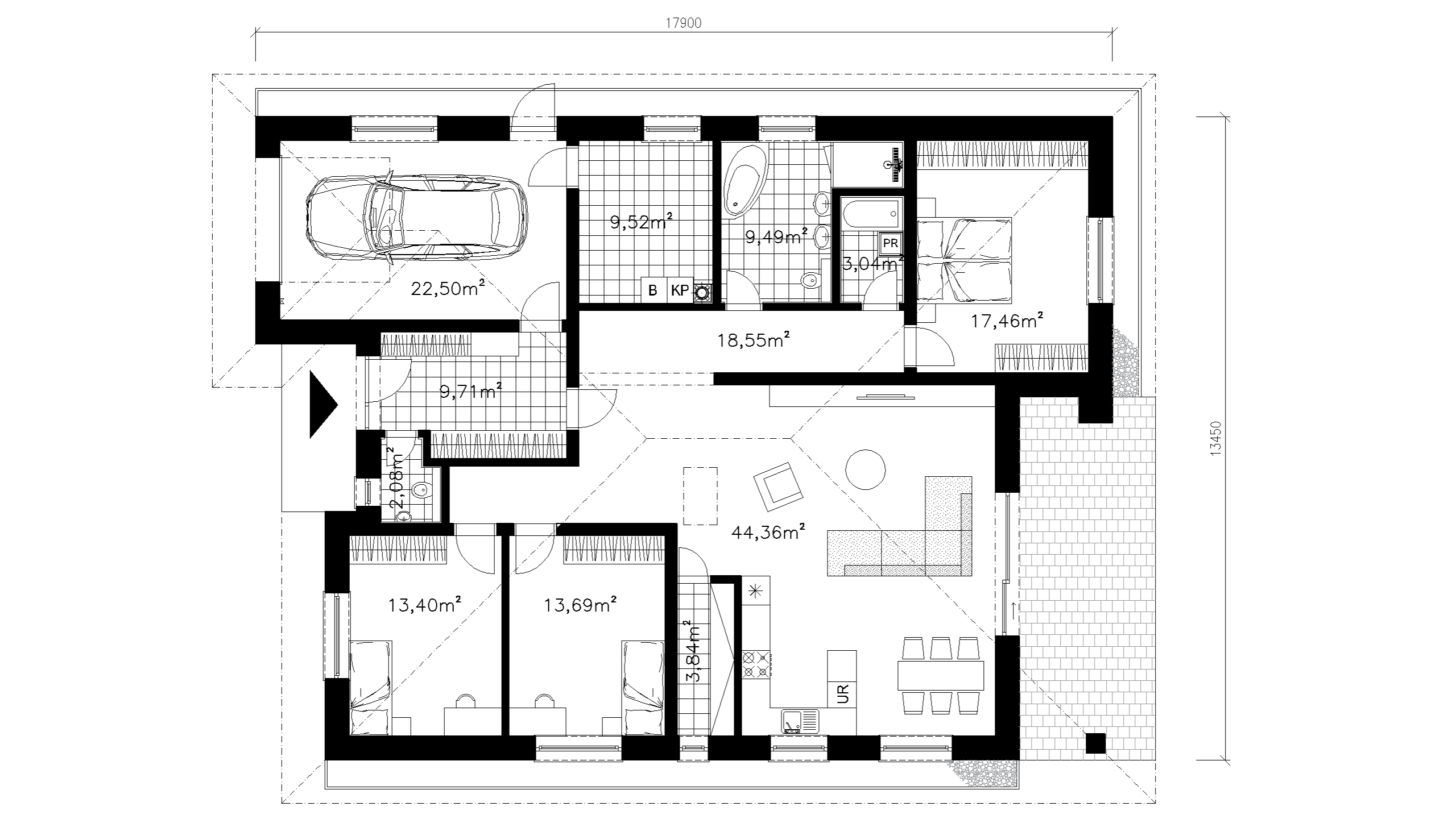
OBYTNÉ MIESTNOSTI
4

DOM PÔSOBÍ POKOJNE A PRIRODZENE ZAPADÁ DO OKOLITÉHO PROSTREDIA. KRYTÉ VSTUPNÉ ZÁDVERIE A ZÁHRADNÁ TERASA VYTVÁRAJÚ PRÍJEMNÉ PREPOJENIE MEDZI INTERIÉROM A EXTERIÉROM. HARMONICKÁ KOMBINÁCIA MATERIÁLOV PODPORUJE POCIT TEPLA DOMOVA A KOMFORTNÉHO RODINNÉHO BÝVANIA.

RODINNÝ DOM JE NAVRHNUTÝ AKO SAMOSTATNE STOJACA JEDNOPODLAŽNÁ STAVBA ZASTREŠENÁ VALBOVOU STRECHOU S KOMPAKTNÝM OBDĹŽNIKOVÝM PÔDORYSOM. CENTRÁLNU ČASŤ DISPOZÍCIE TVORÍ OBYTNÝ PRIESTOR S KUCHYŇOU A JEDÁLŇOU A PRIAMYM VÝSTUPOM NA EXTERIÉROVÚ TERASU. NOČNÁ ZÓNA POZOSTÁVA Z TROCH SAMOSTATNÝCH OBYTNÝCH MIESTNOSTÍ, KÚPEĽNE, SAMOSTATNÉHO WC A KOMUNIKAČNÉHO PRIESTORU SO ZABEZPEČENÝM ÚLOŽNÝM ZÁZEMÍM. SÚČASŤOU OBJEKTU JE INTEGROVANÁ GARÁŽ PRE JEDNO VOZIDLO S PRIAMYM PREPOJENÍM NA INTERIÉR DOMU A NAPOJENÍM NA TECHNICKÚ MIESTNOSŤ.