RD KAMENEC POD VTÁČNIKOM

Späť
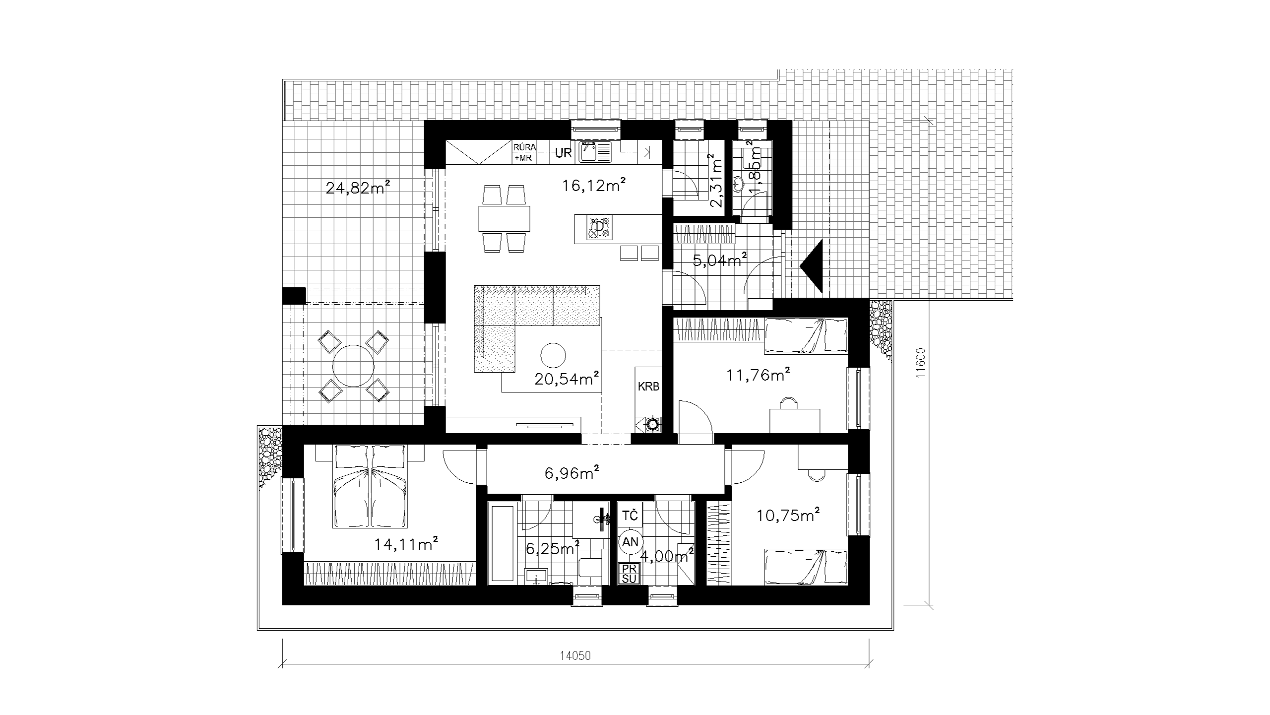
DRUH STAVBY
NOVOSTAVBA
ZASTAVANÁ PLOCHA
141,51 m²
ÚŽITKOVÁ PLOCHA
99,69 m²
VYKUROVANIE
TEPELNÉ ČERPADLO + KRB
TYP STRECHY
PLOCHÁ
OBYTNÉ MIESTNOSTI
4

DISPOZIČNÉ RIEŠENIE DOMU VYTVÁRA PRIRODZENÚ ROVNOVÁHU MEDZI SPOLOČNÝM RODINNÝM PRIESTOROM A POKOJNOU ZÓNOU SÚKROMIA. VEĽKORYSÉ PRESKLENIA A PRIAME PREPOJENIE NA EXTERIÉR PRINÁŠAJÚ DO INTERIÉRU DOSTATOK DENNÉHO SVETLA A KONTAKT SO ZÁHRADOU. JEDNODUCHÁ ARCHITEKTÚRA A ČISTÉ LÍNIE PODPORUJÚ POCIT INTIMITY, SVETLA A HARMONICKÉHO RODINNÉHO BÝVANIA.

RODINNÝ DOM JE NAVRHNUTÝ AKO JEDNOPODLAŽNÁ STAVBA S PLOCHOU STRECHOU A JASNE ČLENENOU DISPOZÍCIOU, KTORÁ ODDEĽUJE DENNÚ A NOČNÚ ČASŤ BÝVANIA. CENTROM DOMU JE OTVORENÝ PRIESTOR OBÝVACEJ IZBY PREPOJENÝ S KUCHYŇOU A JEDÁLŇOU, PLYNULO NADVÄZUJÚCI NA PRIESTRANNÚ TERASU ORIENTOVANÚ DO ZÁHRADY. NOČNÚ ZÓNU TVORIA TRI OBYTNÉ MIESTNOSTI SO SAMOSTATNÝM HYGIENICKÝM A TECHNICKÝM ZÁZEMÍM, PRIČOM KOMUNIKÁCIA JE RIEŠENÁ KOMPAKTNOU CHODBOU. ARCHITEKTONICKÝ VÝRAZ STAVBY JE ZALOŽENÝ NA JEDNODUCHEJ HMOTE A FUNKČNOM USPORIADANÍ, KTORÉ VYTVÁRA KVALITNÉ ZÁZEMIE PRE KOMFORTNÉ RODINNÉ BÝVANIE.