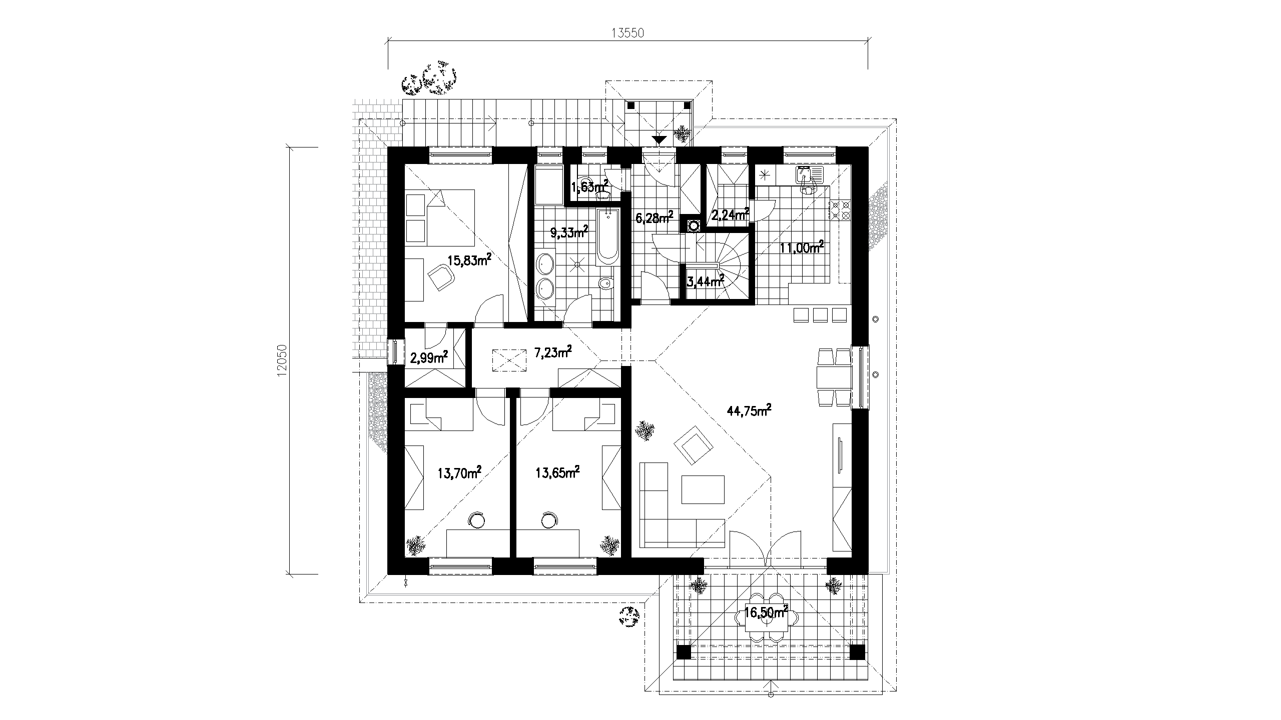
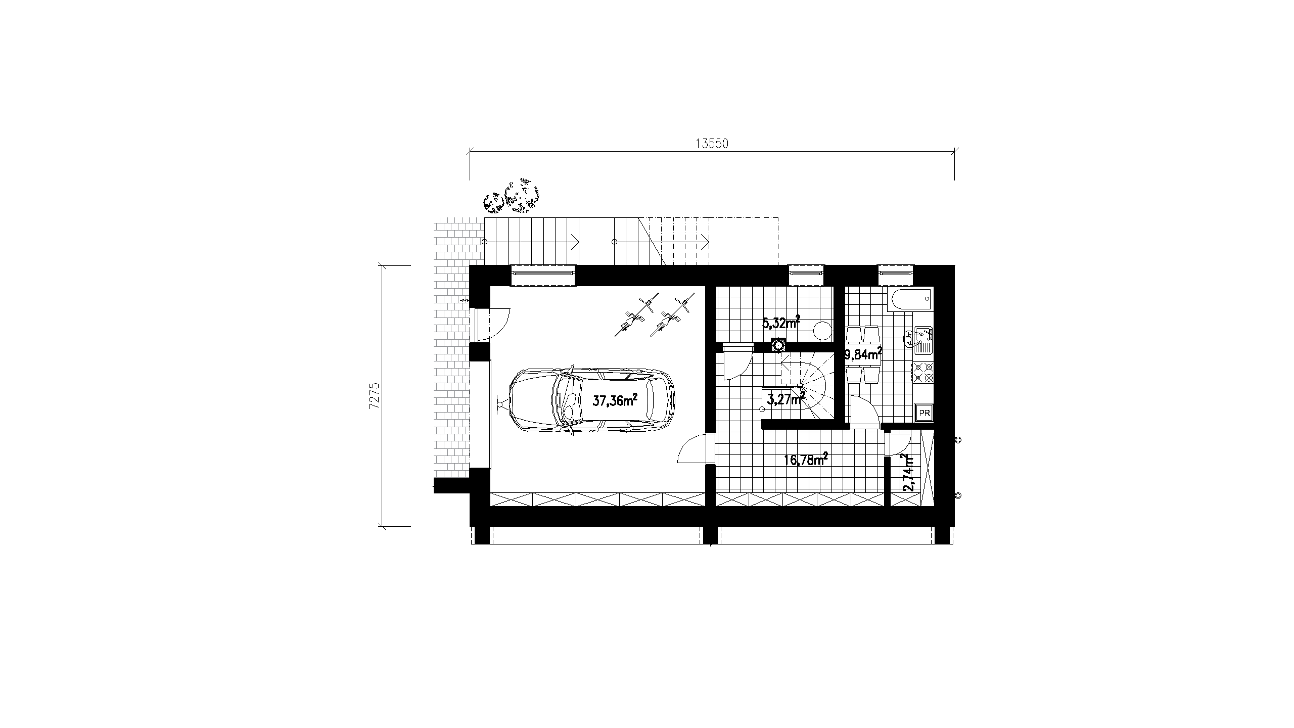
TENTO PROJEKT JE VÝSLEDKOM OSOBITNÉHO PRÍSTUPU K NÁVRHU, S DÔRAZOM NA DETAILY, A REŠPEKTOVANIE PREDSTÁV KLIENTA. NOVOSTAVBA KOPÍRUJE SVAHOVITÝ TERÉN A TAK DOKONALE ZAPADÁ DO OKOLITÉHO PROSTREDIA. DISPOZIČNÉ RIEŠENIE S OHĽADOM NA SVETOVÉ STRANY, VYTVORILO KOMFORT PRE RODINNÉ A MODERNÉ BÝVANIE
JEDNOPODLAŽNÁ STAVBA SO SUTERÉNOM JE NAVRHOVANÁ PRE 4-ČLENNÚ RODINU. SRDCOM TOHTO DOMU JE PRIESTRANNÁ A PRESVETLENÁ OBÝVACIA IZBA SPOJENÁ S TERASOU A OKOLITOU PRÍRODOU. PRÍZEMIE S HLAVNÝM VSTUPOM JE TIEŽ TVORENÉ KUCHYŇOU S JEDÁLŇOU, SÚKROMNOU ČASŤOU A HYGIENICKÝM ZÁZEMÍM. V SUTERÉNE JE SÚSTREDENÁ HOSPODÁRSKO-TECHNICKÁ ZÓNA S GARÁŽOU..
Spoluprácu s firmou Projektstudio hodnotíme pozitívne, nakoľko všetkým naším aj netradičným požiadavkám vyhoveli a vytvorili projekt presne podľa našich predstáv. Sme veľmi spokojní a určite ju odporučíme aj ďalej.
