VÝSLEDNÁ STAVBA SVOJÍM VZHĽADOM PRÍJEMNE ZAPADÁ DO ZASTAVANEJ ČASTI OBCE. TVAR A SKLON STRECHY PODMIEŇUJE HORNATÉ PROSTREDIE, V KTOROM SA RODINNÝ DOM NACHÁDZA. PRESTREŠENÁ TERASA FUNKČNOSŤOU A DIZAJNOM DOPĹŇA STAVBU O VYUŽITEĽNÝ PRIESTOR S VÝHĽADOM
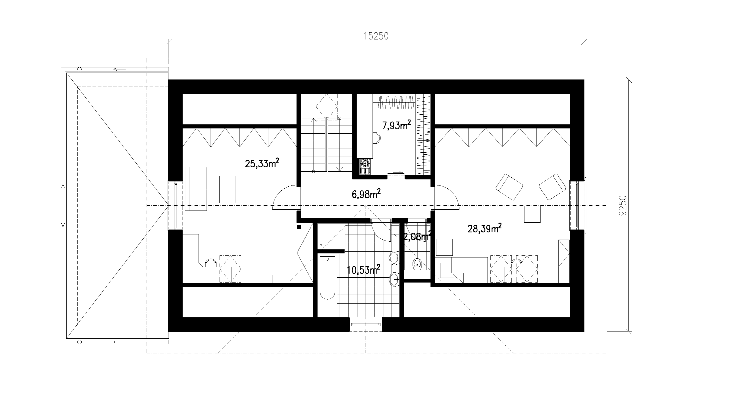
TYPOLOGICKY IDE O DVOJPODLAŽNÚ BUDOVU, KTORÁ JE SVOJÍM DISPOZIČNÝM RIEŠENÍM NAVRHNUTÁ PRE 4 ČLENNÚ RODINU. PRÍZEMIE VYTVÁRA SPOJENÁ MIESTNOSŤ OBÝVACEJ IZBY A KUCHYNE S JEDÁLŇOU. NA VÝCHODNÚ STRANU SÚ ORIENTOVANÉ SPÁLNE. NA DRUHOM NADZEMNOM PODLAŽÍ SA NACHÁDZA PRIESTRANNÁ PRACOVŇA, DETSKÁ IZBA, ODKLADACIA A HYGIENICKÁ MIESTNOSŤ.
Projektstudio sme oslovili na základe doporučenia. Keďže ideme stavať rodinný dom, bolo pre nás dôležité, aby projekt bol dôkladne spravený. A sme naozaj radi, že sme si vybrali práve Vás. Každé jedno stretnutie prebiehalo fajn a cítili sme sa u Vás príjemne. Projekt domu ste nám spravili podľa našich požiadaviek. Ďakujeme
