CHARAKTERISTICKOU ČRTOU PROJEKTU JE ZNAČNE SVAHOVITÝ TERÉN VYTVÁRAJÚCI NÁROČNÉ PODMIENKY PRE ZREALIZOVANIE STAVBY. RODINNÝ DOM VYŽADOVAL PRECÍZNOSŤ PRI CELOM NÁVRHU A ODBORNÉ SKÚSENOSTI STATIKA. VÝSLEDNÁ STAVBA ZAPADÁ DO OKOLITÉHO PROSTREDIA.
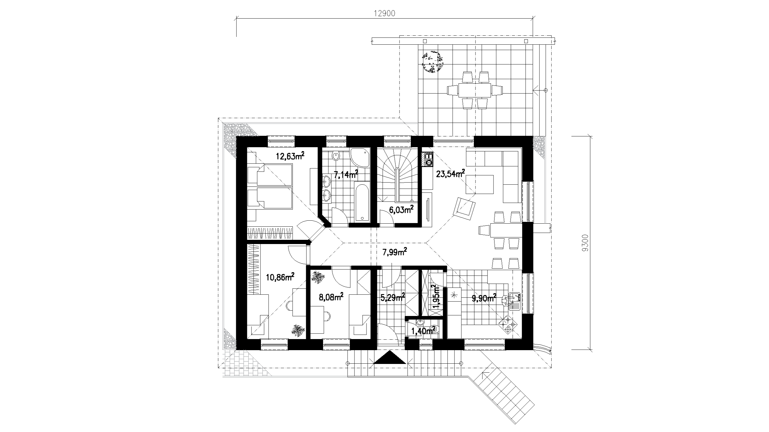
TYPOLOGICKY STAVBU ZARAĎUJEME DO TYPU RODINNÝCH DOMOV- BUNGALOV SO SUTERÉNOM. DOM JE NAVRHNUTÝ PRE 4 ČLENNÚ RODINU SO SPÁLŇOU A 2 DETSKÝMI IZBAMI. NA PRÍZEMÍ JE NAVRHNUTÁ PRESTREŠENÁ TERASA, KTORÁ JE PRIAMO PRÍSTUPNÁ Z OBÝVACEJ MIESTNOSTI. SUTERÉN, V KTOROM JE SÚSTREDENÉ HOSPODÁRSKO TECHNICKÉ ZÁZEMIE S GARÁŽOU, JE PRÍSTUPNÝ CEZ VNÚTORNÉ AJ VONKAJŠIE SCHODISKO
Projekčnú kanceláriu Projektstudio sme oslovili na odporúčanie známych. Pán projektant bol veľmi milý a ochotný pri vypracovaní nášho projektu. Aj keď to nebolo ľahké zadanie, z dôvodu svahovitého terénu, pán Duchoň to zvládol perfektne. Ďakujeme.
