RD ŠUTOVCE 02

Späť
DRUH STAVBY
NOVOSTAVBA
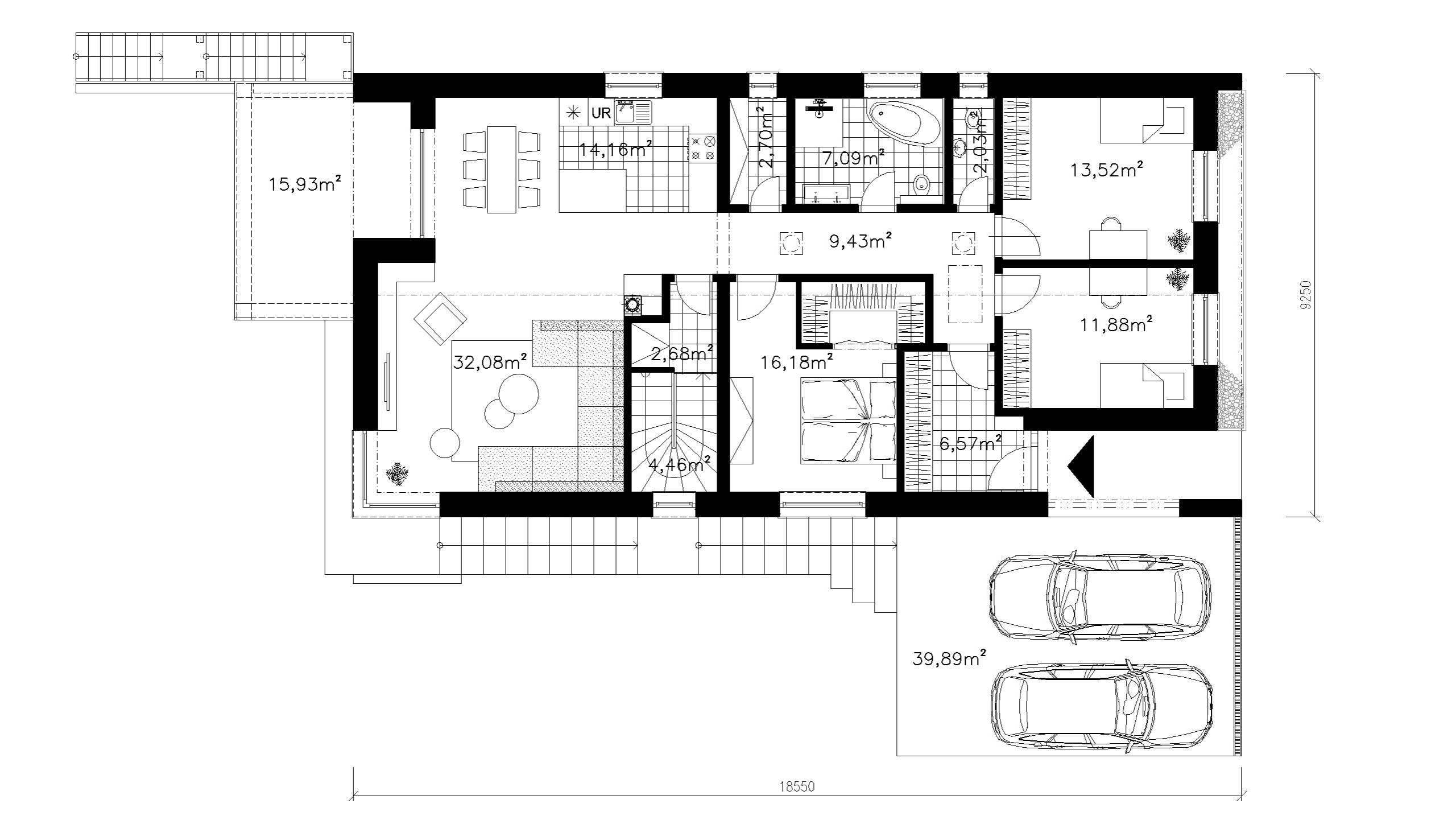
ZASTAVANÁ PLOCHA
179,22 m²
ÚŽITKOVÁ PLOCHA
177,43 m²
VYKUROVANIE
TEPELNÉ ČERPADLO + KRB
TYP STRECHY
SEDLOVÁ
OBYTNÉ MIESTNOSTI
4

DOM PRIRODZENE VYRASTÁ ZO SVAHOVITÉHO TERÉNU A VYTVÁRA POKOJNÉ ZÁZEMIE S VÝHĽADOM DO DVORA. RÔZNE VÝŠKOVÉ ÚROVNE PRINÁŠAJÚ DYNAMIKU PRIESTORU A ZÁROVEŇ POCIT SÚKROMIA PRE KAŽDODENNÝ ŽIVOT. ARCHITEKTÚRA PÔSOBÍ ĽAHKO A HARMONICKY, V ÚZKOM SPOJENÍ S OKOLÍM A PRÍRODOU.

HLAVNÁ OBYTNÁ ČASŤ JE ORIENTOVANÁ SMEROM DO ZÁHRADY A TVORÍ JU OTVORENÝ PRIESTOR OBÝVACEJ IZBY PREPOJENEJ S KUCHYŇOU A JEDÁLŇOU, S PRIAMYM NAPOJENÍM NA EXTERIÉROVÉ POBYTOVÉ PLOCHY. OBJEKT JE FUNKČNE ČLENENÝ NA DENNÚ A SÚKROMNÚ ZÓNU DOPLNENÚ O HYGIENICKÉ A TECHNICKÉ ZÁZEMIE, PRIČOM VERTIKÁLNA KOMUNIKÁCIA ZABEZPEČUJE PLYNULÉ PREPOJENIE JEDNOTLIVÝCH ÚROVNÍ. OBJEKT JE ZASTREŠENÝ SEDLOVOU STRECHOU KONŠTRUKČNE RIEŠENOU AKO KOMPAKTNÝ STREŠNÝ PLÁŠŤ S DÔRAZOM NA SPOĽAHLIVÉ ODVODNENIE.